no.ma architecten

atelier

kolonel begaultlaan 15

3012 leuven

Ingeschreven op de tabel van de Orde van Architecten Vlaams-Brabant.

Stamnummer: B910952

 

Tour & Taxis, koninklijk pakhuis

Havenlaan 86c bus 101

1000 Brussel

raad.brabant@ordevanarchitecten.be

MARSHMALLOW_____

gegevens

bouwheer:
locatie:
jaar:
fase:
foto’s:

tuur + margot
kessel-lo
2019 – 2022
uitgevoerd
stijn knapen

concept

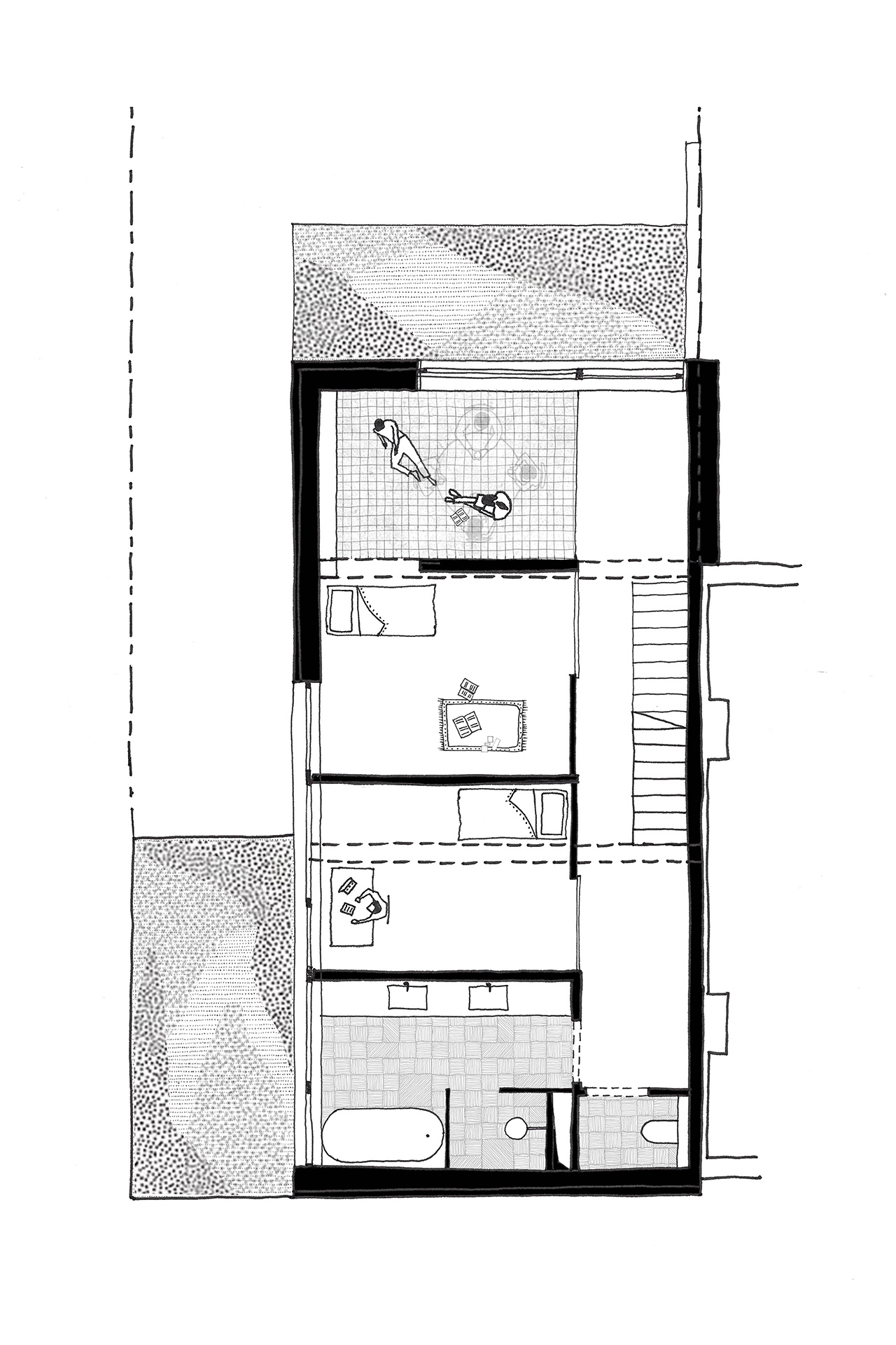
De bestaande gekoppelde woning zou zodanig hard verminkt worden om het gevraagde bouwprogramma te kunnen realiseren dat slopen en weer opbouwen de betere oplossing bleek. Er werd een nieuw volume met een performante isolatieschil ontworpen bovenop de bestaande kelderverdieping. Hierdoor werd het mogelijk om maximaal in te zetten op een doorgedreven ruimtelijkheid met split-levels, interne diagonale zichtlijnen en secuur ingeplante raamopeningen.

 

Opake en beglaasde vlakken wisselen elkaar af. De gesloten vlakken verhinderen inkijk van de buren en verhullen minder aantrekkelijke uitzichten op de omgeving. De grote beglaasde vlakken trekken rijkelijk licht binnen in de woning en kadreren uitzichten op de lucht, het achterliggende waardevolle landbouwgebied en de abdij van Vlierbeek. Het nieuwe volume wordt omhuld met plastieken dak- en gevelleien volgens het upcycle-principe. Er werden twee grote dakuitsteken voorzien die enerzijds de bikeport en het terras overdekken en anderzijds groenzones ter hoogte van het slaapgedeelte en de badkamer creëren. Zij zorgen daarnaast voor passieve zonnewering op de grote beglaasde oppervlaktes.

 

Het meubilair werd mee ontworpen en werd mobiel bedacht om het interieur superflexibel te maken. Wat binnen staat kan ook buiten, wat vast staat kan ook weer los, wat nu nodig is, is dat binnen een uur niet meer. Het concept van “third place” wordt in vier dimensies doorgetrokken.

publicaties

plannen
Prev